APRUEBA LA PRIMERA ENMIENDA A LA SEGUNDA EDICIÓN DE LA NORMA AERONÁUTICA DAN 14 05, DISEÑO E IMPLEMENTACIÓN DE LOS CUARTELES DEL SERVICIO DE SEGURIDAD, SALVAMENTO Y EXTINCIÓN DE INCENDIOS (SSEI)

    Núm. 1.027 exenta.- Santiago, 14 de octubre de 2019.
   
    Vistos:

    a) Ley Nº 18.916, de 1990, que aprueba el Código Aeronáutico y sus posteriores modificaciones.
    b) Ley Nº 16.752, de 1968, que Fija Organización y Funciones y establece Disposiciones Generales a la Dirección General de Aeronáutica Civil y sus posteriores modificaciones.
    c) Decreto supremo Nº 509 bis, de 28 de abril 1947, del Ministerio de Relaciones Exteriores de Chile, publicado en el Diario Oficial de Chile el 6 de diciembre de 1957, que promulga el Convenio sobre Aviación Civil Internacional, suscrito en Chicago el 7 de diciembre de 1944 y sus posteriores modificaciones.
    d) Decreto supremo Nº 173, de 4 de octubre 2004, del Ministerio de Defensa Nacional, Subsecretaría de Aviación, que aprueba la Segunda Edición del Reglamento de Aeródromos DAR-14.
    e) Decreto supremo Nº 222, de 2004, del Ministerio de Defensa Nacional, que aprueba el Reglamento Orgánico y de Funcionamiento (ROF) de la Dirección General de Aeronáutica Civil y sus modificaciones posteriores.
    f) Resolución exenta Nº 0131, de 31 de enero de 2019, del Departamento de Planificación, que aprueba la Quinta Edición del Documento Rector Orgánico y Funcionamiento (DROF), del Departamento Planificación.
    g) Res Ex Nº 0826, de 23 agosto 2019, que aprueba la Segunda Edición de la Norma Aeronáutica DAN 14 05, Diseño e implementación de los cuarteles del Servicio de Seguridad, Salvamento y Extinción de Incendios (SSEI).
    h) Resolución exenta Nº 04/2/655/0872, de 2 de septiembre de 2019, del Departamento Planificación, que aprueba el Plan Estratégico 2019-2030 de la Dirección General de Aeronáutica Civil.
    i) Resolución exenta Nº 0095, de 28 de enero de 2019, del Departamento Planificación, que aprueba la Tercera Enmienda a la Tercera Edición del PRO ADM 02, Estructura normativa de la DGAC.
    j) Anexo 14 al Convenio sobre Aviación Civil Internacional, "Aeródromos" Volumen 1, Diseño y operaciones de aeródromos, octava edición, julio 2018.
    k) Circular de Asesoramiento A/C Nº 150/5210-15 A de la Administración Federal de Aviación de los Estados Unidos de Norteamérica.
    l) Correo electrónico de 9 de septiembre de 2019, del Sr. Sammy Bravo Campos, del Departamento Planificación, que solicita propuesta de Primera Enmienda a la Segunda Edición de la Norma Aeronáutica DAN 14 05, Diseño e implementación de los cuarteles del Servicio de Seguridad, Salvamento y Extinción de Incendios (SSEI).
    m) Correo electrónico de 28 de septiembre 2019, del Sr Marcelo Moreno Ramírez, Jefe de la Sección Seguridad, Salvamento y Extinción de incendios en Aeronaves (SSEI) validando la propuesta de la Primera Enmienda a la Segunda Edición de la Norma Aeronáutica DAN 14 05, Diseño e implementación de los cuarteles del Servicio de Seguridad, Salvamento y Extinción de incendios (SSEI).

    Considerando:

    Lo solicitado por los documentos de los Vistos de letra i) y letra m) de la presente Resolución y la necesidad institucional de actualizar la normativa referida al diseño e implementación de los cuarteles del Servicio de Seguridad, Salvamento y Extinción de Incendios (SSEI)

    Resuelvo:


    Apruébase la Primera Enmienda a la Segunda Edición de la Norma Aeronáutica DAN 14 05, Diseño e Implementación de los cuarteles del Servicio de Seguridad, Salvamento y Extinción de Incendios (SSEI).

    Anótese y comuníquese.- Víctor Villalobos Collao, General de Aviación, Director General.

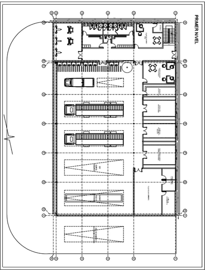
    I. MATERIA

    El objetivo primordial del Servicio de Seguridad, Salvamento y Extinción de Incendios (SSEI) es salvar vidas humanas ante la ocurrencia de un accidente o incidente aéreo que se produzcan en los aeropuertos/aeródromos y en sus cercanías, siendo de su responsabilidad, proporcionar una respuesta oportuna, proteger la vida y la propiedad y reducir al mínimo los efectos de un accidente aéreo, un incidente o de un acontecimiento catastrófico.
    Los Cuarteles SSEI, se emplazarán en áreas adyacentes a las calles de rodaje o plataforma. Estos cuarteles deberán permitir albergar todos los vehículos, equipos, materiales y elementos técnicos asignados. Además, proporcionar la adecuada comodidad y buenas condiciones para el desempeño del personal que cumple servicios. Ante tal circunstancia y para proporcionar la orientación al respecto, esta Norma trata las características esenciales y convenientes a considerar en el diseño e implementación del Cuartel SSEI.
    Esta Norma no se refiere a las características de construcción debido a que estas se encuentran establecidas en la normativa gubernamental existente.

    CAPÍTULO 1
    DEFINICIONES

Para los efectos de esta Norma, los términos indicados a continuación, tienen el significado siguiente:

ÁREA DE MANIOBRAS

Parte del aeródromo que ha de utilizarse para el despegue, aterrizaje y rodaje de aeronaves, excluyendo las plataformas.

ÁREA DE MOVIMIENTO

Parte del aeródromo que ha de utilizarse para el despegue, aterrizaje y rodaje de aeronaves, integrada por el área de maniobras y la(s) plataforma(s).

CENTRAL DE COMUNICACIONES Y ALARMA (C.C.A.)

Área ubicada en la Dependencia de Observación, donde se centraliza la información de las alarmas de accidentes y pueden ordenar actuaciones de control de emergencias.

CUARTELES (Principal, Satélite y uso temporal) S.S.E.I.

Dependencias con instalaciones apropiadas para albergar con seguridad al personal, equipo y vehículos de emergencia asignados al aeropuerto o aeródromo.

ESTACIÓN REMOTA S.S.E.I.

Dependencia con instalaciones apropiada para albergar con seguridad al personal y vehículos del Servicio SSEI cuando exista más de un terminal de pasajeros y no se pueda cumplir el tiempo de respuesta respectivo, AVSEC, supervisión de plataforma, coordinador de servicio y SUM de la DGAC.

EQUIPOS AUXILIARES

Equipamiento asociado a dispositivos que pueden apoyar a una emergencia, tales como generadores eléctricos móviles, compresores de aire, entre otros.

PERSONAL SSEI.

Personal técnico en Seguridad, Salvamento y Extinción de Incendios, capacitado y entrenado para responder activamente en el salvamento, rescate y extinción de incendio frente a emergencias ocurridas en aeródromos y sus cercanías.

PISTA

Área rectangular definida en un aeródromo terrestre preparada para el aterrizaje y el despegue de las aeronaves.

PLATAFORMA

Área definida, en un aeródromo terrestre, destinada a dar cabida a las aeronaves, para los fines de embarque o desembarque de pasajeros, correo o carga, abastecimiento de combustible, estacionamiento o mantenimiento.

SERVICIO DE SEGURIDAD, SALVAMENTO Y EXTINCIÓN DE INCENDIOS (SSEI)

Servicio encargado de dar una respuesta inmediata ante la ocurrencia de un accidente o incidente de aeronaves en tierra, con el propósito de salvar vidas humanas mediante el salvamento y extinción de incendio en aeronaves.

TIEMPO DE RESPUESTA

Tiempo total medido desde el momento que se activa la alarma hasta que el primer vehículo SSEI llega al escenario donde se encuentra la aeronave siniestrada y está en condición de aplicar agente extintor a un régimen de descarga no inferior al 50% del correspondiente a la categoría del AP/AD.

TORRE DE CONTROL DE AERÓDROMO (TWR)

Dependencia establecida para suministrar servicio de control de tránsito aéreo al tránsito de aeródromo.

PLAN NIEVE

Requisito normativo establecido en Documento OACI Anexo 14, Capítulo 10, consistente en una serie de procedimientos, coordinaciones e información, orientada a mantener la superficie del área de movimiento libre de nieve, hielo y escarcha, mediante la aplicación de un sistema preventivo y de control, que considera equipos de medición, vehículos especiales y productos químicos, con la finalidad de asegurar que el rozamiento y la eficacia de frenado de la superficie de los pavimentos se conserven en condiciones tales que no afecten desfavorablemente a la seguridad, regularidad y eficiencia de las operaciones aéreas.

UMBRAL

Comienzo de la parte de pista utilizable para el aterrizaje.

VEHÍCULO EXTINTOR PRINCIPAL
                                                                       
Vehículo diseñado especialmente para el combate de incendios en aeronaves, el transporte del personal y equipamiento técnico, dentro de un tiempo mínimo (tiempo de respuesta) y es considerado para brindar el nivel de protección SSEI.

VEHÍCULO DE APOYO

Vehículos diseñados para intervenir en tareas específicas o apoyar en situaciones de emergencias en el aeropuerto o aeródromo, tales como HAZ-MAT, PMM, SAM, RPA, Plan Nieve, entre otros.

    CAPÍTULO 2
    CONSIDERACIONES GENERALES
   
2.1  ALCANCE

2.1.1 Esta Norma establece e identifica las necesidades y disposición de los cuarteles (principales, satélite y uso temporal) SSEI, estaciones remotas y dependencia plan nieve que apoyan el desarrollo de las operaciones y otras diversas actividades que corresponde llevar a cabo al Servicio SSEI en un aeropuerto o aeródromo, como se establece en los documentos signados en los antecedentes.

2.1.2 La clave para el desarrollo exitoso de tales actividades, se logra con una ubicación óptima de las instalaciones, complementadas con un diseño que contemple los aspectos técnicos necesarios y convenientes para mantener y mejorar en el tiempo, la eficacia, eficiencia y efectividad del personal y equipamiento técnico del Servicio SSEI.

2.1.3 Seleccionar la ubicación apropiada para emplazar los cuarteles (principales, satélite y uso temporal) y las estaciones remotas del Servicio SSEI es trascendental para reducir los tiempos de respuestas ante una emergencia de aeronave.

2.1.4 El diseño y orientación de los cuarteles debe considerar vías directas y libres de obstáculos para que el personal pueda acceder en el menor tiempo a los umbrales, pistas, calles de rodaje y plataformas con los vehículos de emergencia.

2.1.5 Se establecerán estaciones remotas cuando en un aeropuerto o aeródromo existan más de un terminal de pasajeros y no se pueda cumplir el tiempo de respuesta respectivo.

2.1.6 Las estaciones remotas SSEI, podrán albergar, además, estaciones AVSEC, SAM y coordinador de servicio, se emplazará dentro de la plataforma, quedando su ubicación libre de obstáculo y vías expeditas para responder a emergencias.

2.1.7 Los cuarteles de uso temporal, se construirán en aeródromos que tengan operaciones comerciales regulares, con aeronaves de más 20 asientos, en determinados periodos de tiempos durante un año.

2.1.8 Los cuarteles provisorios, serán diseñados y construidos de estructuras que permitan su instalación y desarme en un periodo de tiempo acotado y serán habilitados en aeropuertos y aeródromos por situaciones que la autoridad aeronáutica determine.

2.2  AMBIENTE DE TRABAJO

2.2.1 En los Cuarteles (principales, satélite y uso temporal) SSEI, el personal deberá contar con un ambiente de trabajo seguro y confortable. El nivel de ruido del ambiente de trabajo deberá cumplir con las exigencias de la norma nacional para tal efecto.

2.2.2 Los cuarteles (principales, satélite y uso temporal) deberán contar con un recinto adecuado para el desarrollo de acondicionamiento físico mediante la utilización de máquinas y elementos que se requieran para tal efecto.

2.2.3 El cuartel de uso temporal, la sala de acondicionamiento físico, será una sala de uso para múltiples funciones, según requerimientos.

2.3  EDIFICACIONES

2.3.1 Los Cuarteles (principales, satélite y uso temporal) estaciones remotas y dependencia plan nieve SSEI proyectados, deberán ser concordante con las necesidades particulares del aeropuerto o aeródromo que se trate.

2.3.2 Las instalaciones deberán contar con suficientes salidas que permitan en forma expedita acceder a los vehículos principales de extinción de incendios, vehículos de apoyo y equipos auxiliares.

2.3.3 Las instalaciones deberán contar con energía eléctrica de emergencia y dispositivos de detección, alarma y extinción de incendios y aislación térmica.

2.4  CONFIGURACIÓN DE LAS DEPENDENCIAS DEL SERVICIO SSEI.

2.4.1 Los Cuarteles principales, satélite, uso temporal, dependencia del plan nieve y estaciones remotas del Servicio SSEI deberá contar con las siguientes dependencias:

    .
    .

Nota: Cabina de observación instalada sobre el techo del cuartel principal con acceso desde el interior. La Central de Comunicaciones y alarma está contenida en la cabina de observación.

2.4.2 Las dimensiones y capacidades de instalación del cuartel principal, cuartel satélite y uso temporal SSEI, deberán estar en conformidad con el nivel de protección SSEI que se brindará en el aeropuerto o aeródromo, situación que incidirá en el número de vehículos principales contra incendio, vehículos de apoyo, equipos auxiliares, equipamiento y personal con el que deberá contar.

2.4.3 Las dimensiones de las estaciones remotas serán de acuerdo con el tipo de vehículo que se disponga o se prevean tener y las dependencias plan nieve será acorde con el equipamiento y maquinaria plan  nieve del aeropuerto o aeródromo.

    CAPÍTULO 3

    EMPLAZAMIENTO DE LOS CUARTELES Y DEPENDENCIAS SSEI.

3.1  OBJETIVO

    Seleccionar conforme al Plano Regulador del aeropuerto o aeródromo, la ubicación correcta para emplazar los Cuarteles (principales, satélite y uso temporal) SSEI y estaciones remotas, a objeto cumpla con los requerimientos de tiempo de respuesta de los vehículos SSEI, conforme lo dispone el reglamento y la normativa aeronáutica.

3.2  PARÁMETROS CONSIDERADOS PARA LA SELECCIÓN DEL SITIO

3.2.1 Todo Cuartel del Servicio SSEI de un aeropuerto/aeródromo deberá constituir una unidad independiente, que reúna las condiciones necesarias para proteger a los vehículos, personal y equipo asignado, y permita la respuesta inmediata y eficaz en caso de emergencia.

3.2.2 La selección de un sitio adecuado para la construcción de los cuarteles (principales, satélite y uso temporal) y estaciones remotas SSEI, conlleva al análisis de una serie de factores involucrados y que pueden ser diferentes de un aeropuerto a otro, además de estar directamente relacionados con el tiempo de respuesta de los vehículos.

3.2.3 Factores operacionales

      El lugar para el emplazamiento de los cuarteles principales, satélite y uso temporal SSEI, deberá considerar los siguientes aspectos:

      a) Ubicación equidistante a los umbrales de las pistas
      b) Acceso directo al área de movimiento con salida tipo "Y" para minimizar punto de vuelco y frenada, disminuyendo tiempo de respuesta.
      c) Rutas de acceso libres con un mínimo de giros a las pistas.
      d) Acceso directo a la zona de estacionamiento de aeronaves, evitando el cruce de pistas de aterrizaje, calles de rodajes o terrenos poco accesibles.
      e) No producir interferencia con la línea de visión del tránsito aéreo desde la Torre de Control.
      f) Permitir la vigilancia u observación total de la pista y áreas adyacentes.
      g) Cumplir con la línea de restricción que demande el aeropuerto / aeródromo.
      h) Permitir futuras ampliaciones del Cuartel SSEI y que no afecten a otros servicios del aeropuerto.
      i) Facilitar la integración con el sistema de seguridad del aeropuerto.

3.2.4 Dimensión del sitio seleccionado

      El lugar seleccionado deberá contemplar:

      a) Superficie adecuada para construir el Cuartel principal cuartel satélite, de uso temporal SSEI, estaciones remotas y dependencia plan nieve diseñados, como, asimismo, incorporar las futuras ampliaciones como consecuencia del aumento del parque vehicular, renovación de vehículos principales de extinción de incendios de mayores dimensiones, incremento de la dotación de personal y asignación de nuevo equipamiento en general.
      b) Facilidades externas tales como estacionamiento para los funcionarios, área de movimiento de los vehículos de emergencia, sitio para el reabastecimiento del vehículo SSEI (agua y/o espumógeno) y área de servicio.
      c) Un sistema para la eliminación de basura.

3.2.3 Proximidad a servicios básicos

3.2.5.1 Deberá considerarse la accesibilidad y distancia razonable a:

        a) Planta de energía eléctrica y otras fuentes de energía alternativa, como gas.
        b) Redes esenciales de comunicación y de telecomunicaciones, considerando la proximidad a troncales de fibra óptica a la red de cobre.
        c) Acceso a las actuales y futuras fuentes de abastecimiento de agua y a conexiones de alcantarillado.

3.2.6  Topografía y orientación de los Cuarteles (principal, satélite y uso temporal)

3.2.6.1 Preferentemente un sitio en superficie plana, donde el nivel de terreno se encuentre sobre la cota de nivel de la pista, en caso contrario, que el emplazamiento a desnivel cumpla con la reglamentación referida a tiempos de respuesta y factores operacionales.

3.2.6.2 La orientación adecuada deberá constituir una protección de los efectos climáticos tales como lluvia y viento, como, asimismo, no quedar expuesta a probables inundaciones u otros efectos adversos producto del factor climático.

3.2.6.3 Deberá considerar la implementación de Cuarteles Satélites SSEI, además del Cuartel SSEI principal, dependiendo del número de Pistas y distancias a recorrer, con el propósito de cumplir con la Norma referida al tiempo de respuesta de los vehículos de emergencia. Dichos Cuarteles deberán cumplir con los mismos requerimientos técnicos y especificaciones establecidos.

    CAPÍTULO 4
    ESPECIFICACIONES DE LAS DEPENDENCIAS DEL SERVICIO SSEI.

4.1  INTRODUCCIÓN

4.1.1 Las disposiciones del DAR - 14 en su Capítulo 9, establecen la cantidad de agua transportada y el número mínimo de vehículos principales contra incendio requeridos por los aeropuertos o aeródromos.

4.1.2 El parque de vehículos principales de emergencia, vehículos de apoyo, equipos auxiliares y sus características determinan las exigencias de diseño operacional de los sitios de estacionamientos de los Cuarteles (principales, satélite y uso temporal), la cantidad de personal, equipamiento y, por consiguiente, las instalaciones y sus facilitaciones.

4.2  HALL DE ESTACIONAMIENTO PARA VEHÍCULOS SSEI

4.2.1 Es el núcleo de todo Cuartel SSEI. Su posición, forma, tamaño, distribución y luminosidad deberán permitir un acceso rápido y fácil de los funcionarios hacia los vehículos desde cualquier zona del cuartel.

4.2.2 Los sitios de estacionamiento dictaminan la disposición y el diseño estructural del Cuartel e influyen en la operación exitosa del Servicio SSEI.

4.2.3 Número de estacionamientos

4.2.3.1 El hall de estacionamiento para los vehículos de emergencia en los cuarteles SSEI, contará con una serie de emplazamientos que proporcionen espacio suficiente para cada vehículo y un área contigua en la cual el personal pueda trabajar con comodidad.

4.2.3.2 La cantidad de estacionamientos del Cuartel principal SSEI, será concordante con la Tabla 9 - 3 del DAR - 14, en la cual se ilustra el número mínimo de vehículos principales de salvamento y extinción de incendios con que debe contar un aeropuerto o aeródromo donde se provea este servicio.

4.2.3.3 Complementariamente, en los cuarteles principales se deberán agregar otros estacionamientos destinados para los vehículos de apoyo y equipamientos auxiliares de apoyo a las emergencias, tales como vehículo de intervención rápida y puesto de mando móvil entre otros.

4.2.3.4 La cantidad de estacionamiento del cuartel satélite y cuartel de uso temporal, será concordante a los requerimientos de vehículos principales de salvamento y extinción de incendios, según lo establezca el tiempo de respuesta establecidos en la reglamentación y normativa aeronáutica.

4.2.3.5 La cantidad de estacionamiento para una estación remota; un vehículo de intervención rápida SSEI, un vehículo AVSEC, un Vehículo SAM y un vehículo del coordinador de servicio o SUM.

4.2.4  Dimensiones de los estacionamientos

4.2.4.1 Las dimensiones de los estacionamientos se determinarán considerando el uso asignado, las características físicas de los vehículos principales contra incendio, vehículos de apoyo y equipos auxiliares, que forman parte del parque vehicular de la Unidad Aeroportuaria SSEI.

4.2.4.2 El Anexo A proporciona antecedentes relacionados con tamaños de vehículos principales contra incendio actualmente en uso en los aeropuertos y aeródromos del país.

4.2.4.3 La configuración (largo, ancho y alto) de los sitios de estacionamiento se determinará utilizando las dimensiones del vehículo principales de salvamento y extinción de incendios, en uso de mayor tamaño o del nuevo vehículo principal previsto que se asignará a la unidad. El tamaño apropiado de los estacionamientos deberá proporcionar flexibilidad operacional, márgenes de seguridad y espacio para las labores de mantenimiento menor de los vehículos.

4.2.4.4 La disposición de los estacionamientos deberá considerar las conexiones traseras para el aire y/o sistema eléctrico, zona libre para espejos de vista lateral (afecta el ancho de la puerta), nuevos diseños de vehículos principales con torretas extensibles y monitores de parachoques oscilantes y de alto rendimiento.

4.2.5  Factores a considerar en el diseño de los estacionamientos.

4.2.5.1 El personal SSEI deberá tener accesos libres de obstáculos en todo el interior y exterior (hall de vehículos) y desde cualquier punto del Cuartel hacia los sitios de estacionamiento.

4.2.5.2 Deberá considerarse primordialmente, el estacionamiento de los vehículos uno al costado del otro, el aparcamiento en línea deberá limitarse sólo a los equipos auxiliares.

4.2.5.3 Los espacios mínimos de seguridad estándar recomendados para los vehículos SSEI consideran:

        a) 1,80 mt. entre el vehículo y paramento de fondo y laterales / áreas de almacenamiento.
        b) 2,40 mt. entre vehículos aparcados uno al costado del otro.
        c) 1,50 mt. entre equipos de auxiliares aparcados en sistema convoy, y
        d) 1,50 mt. entre el vehículo y paramento de frente.

4.2.5.4 El ancho del estacionamiento del vehículo deberá ser igual a la distancia entre los bordes exteriores izquierdos y derechos con las puertas abiertas, añadiéndole 1 mt. a cada lado.

4.2.5.5 Se requerirá más espacio en el caso que los portones estén fabricados por hojas plegables. Del mismo modo, se deberá considerar un margen de espacio adicional para los futuros vehículos asignados cuyas dimensiones podrán ser mayores a las de los vehículos actuales.

4.2.5.6 Se implementará una señal visible que permita al conductor tener referencia del correcto estacionamiento del vehículo dentro de los márgenes de seguridad estipulados.

4.2.5.7 Se dispondrá de cuñas empotradas en los estacionamientos, para que el contacto de las ruedas traseras del vehículo indique al conductor la necesidad de detención y la correcta posición del vehículo.

4.2.5.8 La altura libre de los estacionamientos del Cuartel, deberá permitir al personal estar de pie erguido sobre el vehículo.

4.2.5.9 El tamaño estándar de los lockers es generalmente de 0,70 mt de profundidad, 0,90 mt. de ancho, además se deberá considerar una superficie libre frente del armario de 0,60 mt. de profundidad y 0,90 mt. de ancho.

4.2.5.10 El área de almacenamiento deberá estar preferentemente adosada a la pared a objeto de permitir un libre movimiento del personal y tener ventilación natural o mecánica para mantener la ropa seca y libre de contaminantes patógenos.

4.2.6 Sistema eléctrico

4.2.6.1 Se deberá proporcionar suministro eléctrico para los vehículos principales, vehículos de apoyo y equipos auxiliares afines, a objeto de alimentar los calentadores de los motores, cargadores de baterías, compresores de aire y otros equipos considerados de apoyo a las labores de rescate, con energía eléctrica monofásica y trifásica según corresponda.

4.2.6.2 Todas las conexiones deberán ser diseñadas para la desconexión rápida y segura. El cableado deberá ser canalizado de tal modo que no constituya un obstáculo o riesgo al personal SSEI que se dirija a los vehículos por una situación de emergencia.

4.2.7  Ambiente interior hall de vehículos

4.2.7.1 Deberá contar con un sistema automático de extracción al exterior de los gases residuales, producto del escape de los vehículos, con el objeto de evitar la contaminación del aire interior.

4.2.7.2 El sistema de extracción de gases residuales deberá de estar conectado a la salida de gases de los vehículos principales de extinción de incendios y vehículos de apoyo.

4.2.7.3 Todas las conexiones a los vehículos tendrán que proyectarse de modo que se puedan desconectar inmediatamente con seguridad, sin causar demora en la salida de los vehículos al lugar del siniestro.

4.2.7.4 Deberá contar con un sistema de calefacción independiente para mantener la temperatura ambiente requerida para los vehículos SSEI, que mantenga un mínimo de +5º C.

4.2.7.5 Deberá contar con detectores de monóxido de carbono y/o gases tóxicos de vehículos petroleros en las instalaciones, conforme a las normas de seguridad contempladas en la legislación nacional.

4.2.8  Equipos y sistemas de apoyo para los vehículos
        Deberá contar con un equipo de suministro de aire comprimido con capacidad de a lo menos 120 psi (825 kpa) de presión de trabajo, para efectos de mantenimiento del vehículo como, asimismo, para mantener los niveles mínimos de aire en el sistema de frenos como en el de extinción.
        Para este efecto, la línea de aire deberá ser del tipo retráctil y disponible para la conexión a cada vehículo de extinción de incendios, considerando el sistema de auto desconexión para casos de emergencia.

4.2.9  Portones de los Cuarteles SSEI

4.2.9.1 Los portones del hall de estacionamiento deberán ser levadizo, de accionamiento rápido, construcción resistente y preferentemente con ventanas para la iluminación natural y visualización de la plataforma exterior.

4.2.9.2 Las mínimas dimensiones que deben tener los marcos de los portones de los Cuarteles SSEI, conforme a la reglamentación internacional, corresponde a 4,87 mt. de altura y 4,87 mt. de ancho, magnitud apropiada para los vehículos de emergencia actualmente en el mercado.

4.2.9.3 El tiempo de apertura de cualquier portón de los estacionamientos será como máximo de 20 segundos para cumplir con los requerimientos de tiempo de respuesta de los vehículos SSEI, conforme lo dispone el Capítulo 9 del DAR - 14 "Reglamentos de Aeródromos".

4.9.9.4 La apertura de los portones deberá ser accionada a distancia desde la Central de Comunicaciones y Alarma, por control remoto desde los vehículos, desde el costado de cada portón del estacionamiento, manualmente al jalar una cadena o automáticamente al accionar el sistema de alarma.

4.2.9.5 Cada portón eléctrico del hall de estacionamiento de los vehículos SSEI, deberá contar con un sistema de apertura manual expedita y operable por una sola persona. En caso de falla en el procedimiento de apertura de los portones, deberá existir un sistema maestro que permita la apertura de todas las puertas del hall de estacionamiento.

4.2.9.6 El personal SSEI en las unidades donde el Cuartel SSEI no cuente con personal de punto fijo en la Central de Comunicaciones y Alarma, podrá utilizar control remoto en los vehículos para abrir los portones a su regreso.

4.2.9.7 Deberá contar con un sistema automático retráctil de portón, a objeto invertir el movimiento de desplazamiento de la puerta cuando pueda entrar en contacto con algún individuo, equipo o parte de un vehículo.

4.2.9.8 Para la conservación de los diferentes tipos de energía y la atenuación del ruido, los portones del hall de vehículos, deberán ser aislados y resistentes a las diferentes condiciones climáticas extremas.

4.2.9.9 Los Cuarteles SSEI en aquellos aeropuertos o aeródromos con temperaturas extremadamente bajas, deberán contar con un sistema térmico o de otro tipo, que impida que la acción del hielo y la nieve obstruya la apertura normal de sus portones.

4.2.10 Superficie del Hall de Estacionamiento de los vehículos SSEI

4.2.10.1 La superficie del hall de estacionamiento de vehículos deberá resistir la carga del vehículo de mayor peso en servicio, considerando un incremento de un 10% como mínimo.

4.2.10.2 Con la finalidad de evitar lesiones al personal, los pisos adyacentes a los estacionamientos deberán considerar el mismo nivel.

4.2.10.3 Las terminaciones de la superficie del piso deberán ser lisos, fáciles de limpiar y resistentes a la acción de derrames de combustibles de hidrocarburos, concentrados de espuma, anticongelantes y ácido de batería entre otros.

4.2.10.4 Deberá considerar una pendiente del piso, orientada hacia los portones, donde se instalará un drenaje para permitir que escurran los líquidos, el cual estará cubierto por una rejilla gruesa y resistente, que soporte holgadamente el peso de los vehículos contra incendio.

4.2.11 Tubos deslizantes de emergencia

4.2.11.1 En aquellos cuarteles que se considere un segundo nivel, se deberá instalar un tubo deslizante de 15 centímetros de diámetro, que no acumule óxido y permita el deslizamiento del personal como el frenado en su trayecto, para un descenso expedito y seguro a la planta baja. Con un dispositivo de amortiguación en la base del tubo para evitar lesiones al personal SSEI.

4.2.11.2 El tubo deslizante deberá ser emplazado a una distancia de 50 cm. de la plataforma de deslizamiento de emergencia del personal SSEI y su ubicación, no deberá obstruir las vías de circulación.

4.3      PLATAFORMA EXTERIOR DE LOS CUARTELES SSEI


4.3.1    La superficie operativa de la plataforma exterior, deberá ser lo suficientemente amplia para que los vehículos de mayor longitud y/o radio de giro puedan maniobrar sin inconvenientes.

4.3.2    El diseño de la plataforma exterior de estacionamiento del Cuartel SSEI, deberá orientarse para proveer una ruta de acceso directo, desde el lugar de estacionamiento de los vehículos principales de salvamento y extinción de incendios al área de movimiento del aeropuerto/ aeródromo, evitando giros que puedan poner en peligro la estabilidad y seguridad de los vehículos u otros obstáculos que afecten el tiempo de respuesta.

4.3.3    Se deberá considerar la instalación de grifos de incendios, de acuerdo a la categoría de protección SSEI brindada, un grifo hasta categoría 6, superior a esta categoría se requieren dos grifos. Estos deberán estar conectados a la red de emergencia o en su defecto a la red de agua del aeropuerto/aeródromo. Más un grifo de servicio conectado a la red de agua del AP/AD.

4.3.4    Los grifos deberán cumplir con la norma chilena NCh 691 y NCh 1646 referida a diámetro de tubería y caudal de agua. Tener las mismas dimensiones en las salidas de agua, el hilo compatible con los restantes grifos del aeropuerto y con la conexión de entrada de los vehículos SSEI.

4.3.5    Deberá contar un estanque para el abastecimiento rápido de agua, la cantidad mínima de agua será de 38.000 litros estándar. El estanque debe ser a nivel del terreno, con escotilla de limpieza y conexiones de salida de agua compatible con la conexión de entrada de los vehículos SSEI, además, contar con una conexión de 110 mm para succión y una bomba de agua, que permita suministrar un caudal de agua suficiente para el abastecimiento, conectado al sistema de red de agua domiciliaria.

4.3.6    Deberá contar con una luz de color rojo de advertencia en el frontis del Cuartel principal, cuartel satélite, uso temporal y estación remota, a objeto alertar a los vehículos y peatones que transitan por la plataforma exterior de estacionamiento de los vehículos SSEI, del movimiento de los vehículos de emergencia. Esta luz se activará automáticamente, cada vez que la puerta del hall de vehículos se abra para la salida de los vehículos de emergencia.

4.3.7    Para efecto de estacionar ordenadamente en el exterior los vehículos SSEI, se deberá demarcar una franja de alineación en el sitio de estacionamiento, la cual se extenderá por el piso desde la parte trasera del vehículo hasta una distancia igual a la longitud del vehículo más largo de la flota.

4.3.8    Las luminarias deberán montarse de tal forma, que no interfieran con la visión de los conductores al salir o regresar al Cuartel.
        La implementación del sistema de iluminación, deberá garantizar que no se reflejen en los retrovisores de los vehículos cuando estos están retrocediendo en el Cuartel.

4.3.9    Deberá contar con un lavadero anexo al cuartel, dotado de una fuente de agua.
        Adicionalmente, se contará con un armario de 6,0 metros cuadrados para cobijar el equipo de limpieza y suministros.

4.4      CABINA DE OBSERVACIÓN Y CENTRAL DE COMUNICACIONES Y ALARMA (C.C.A.)

4.4.1    Cabina de Observación

4.4.1.1  Dependencia habilitada para el funcionamiento normal de vigilancia de las operaciones aéreas en los aeropuertos/aeródromos.

4.4.1.2  La cabina de observación será una dependencia elevada que deberá proporcionar la máxima visualización de los umbrales, calles de rodajes y plataformas del aeropuerto o aeródromo para mantener una vigilancia y control permanente de las actividades aéreas.

4.4.1.3  La cabina de observación deberá servir de instalación en situaciones de emergencias o de catástrofe como una alternativa para las dependencias de servicios de tránsito aéreos.

4.4.1.4  La superficie mínima estándar de la dependencia de observación, será de 12 metros cuadrados.

4.4.1.5  La cabina será una estructura acristalada de forma poligonal, hexagonal o un número superior de caras o circular, evitando que pilares o soportes estructurales de la cabina, obstaculicen la visibilidad hacia los umbrales y las trayectorias de aproximación final a las pistas.

4.4.1.6  La altura del antepecho de las ventanas, deberá ser tan baja como sea posible, para facilitar la visión del área que se extiende inmediatamente a partir de la base de la Torre.

4.4.1.7  Las ventanas deberán tener una inclinación hacia el exterior de 15°.

4.4.1.8  Las ventanas deberán estar constituidas por cristales tipo termo panel con aislación térmica, acústica y libre de distorsión. Deberán contar con cortinas transparentes con filtro UV que no produzcan reflejos y que se puedan alzar y bajar a voluntad. Con fines de ventilación complementaria, se deberá considerar la instalación de un paño de ventana que permita su apertura.

4.4.1.9  Las superficies interiores de la cabina deberán estar pintadas con colores claros y que eviten reflejos. Los soportes verticales interiores también deberán ser pintados con pintura antirreflectante de color oscuro.

4.4.1.10 El piso de la cabina deberá ser de un material de alto tráfico, resistente al fuego, antiestático y absorbente de ruidos. La altura mínima entre el piso y el cielo de la cabina no podrá ser inferior a 3 metros.

4.4.1.11 La iluminación debe estar empotrada en el cielo de la cabina y ser regulable en intensidad.

4.4.1.12 Las luces necesarias para iluminar los puestos de trabajo deberán ubicarse de manera que no entorpezcan las labores de puestos adyacentes.

4.4.1.13 La escalera de acceso a la cabina deberá estar emplazada de manera tal que no obstruya el desplazamiento de las personas y el funcionamiento normal en la cabina, contando con luz para peldaños.

4.4.1.14 La cabina de observación deberá contar con vías de escape en conformidad con las especificaciones de la Ley General de Urbanismo y Construcciones y la Ordenanza General de Urbanismo y Construcciones.

4.4.1.15 Las estaciones de trabajo al interior de la cabina de observación se ubicarán en relación con el área de maniobras y con directa visión hacia la pista del aeródromo.

4.4.1.16 Las estaciones de trabajo deberán privilegiar el acceso al equipamiento para efectos de mantenimiento por la parte anterior y posterior. La distancia mínima al muro será de 60 cm.

4.4.2    Área y Equipamiento para Central de Comunicaciones y Alarma (C.C.A.)

4.4.2.1  Corresponde a un área al interior de la cabina de observación y constituye el centro neurálgico para la recepción de llamadas de emergencia, coordinación y canalización de la información ante la ocurrencia de una emergencia como, asimismo, requerir el envío de los vehículos SSEI, movilizar y dirigir a otros recursos de apoyo.

4.4.2.2  Deberá estar conectado a la fuente de energía eléctrica de emergencia para el sistema de alarma y equipo de comunicaciones y además contar con un sistema de climatización.

4.4.2.3  Todos los equipos electrónicos y el cableado deberán ser de fácil acceso para el mantenimiento y reparación. Cielo falso y paneles removibles deberán utilizarse para facilitar el acceso a los cables y/o equipos eléctricos para realizar el mantenimiento y/o mejoras necesarias.

4.4.2.4  La CCA deberá contar con puntos de red y, además, disponer de un ordenador / computador que le permita ingresar al sistema integrado de comunicación con el objeto de acceder a información inmediata y actualizada sobre registros electrónicos, características de sustancias peligrosas, información del Plan de Emergencia, configuración de aeronaves, entre otros.

4.4.2.5  La CCA deberá estar equipada con un mínimo de equipos de comunicación, compuestos de VHF - AM y VHF - FM, para comunicaciones de emergencia entre la CCA, vehículos SSEI y otras dependencias involucradas en el Plan de Emergencia del Aeropuerto, como también, mantener escucha de las frecuencias de la Torre de Control y aeronaves.

4.4.2.6  Se debe considerar los siguientes sistemas con sus respectivas conexiones para la central de alarma y comunicaciones:

        a) Un sistema de comunicaciones telefónicas independiente (línea caliente), que enlace el Cuartel del Servicio SSEI con la Torre de Control;
        b) Un sistema de radiocomunicaciones VHF/AM y VHF/FM, que permita el enlace de comunicaciones radiales entre la estación Servicio SSEI / TWR / Vehículos / puesto Mando Móvil (PMM) y personal SSEI;
        c) Una frecuencia VHF/FM exclusiva para ser utilizada por el Servicio SSEI;
        d) Un sistema de alarma para alertar al personal SSEI, que puede ser activado desde la torre de control o desde la CCA del cuartel SSEI;
        e) Un sistema de amplificación para alertar a los Técnicos SSEI, accionado desde la CCA. y
        f) Sistema de comunicaciones con organismos de apoyo externo.

4.4.2.7  Deberá contar con un sistema externo de vigilancia nocturna y además con un reductor de luz para atenuar la intensidad de la iluminación interior.

4.4.2.8  La CCA deberá contar con reloj con iluminación propia, con formato de visualización de 12 y 24 horas del día.

4.4.2.9  Deberá contar con medidas adecuadas de atenuación de ruido para compensar los altos niveles generados por los vehículos SSEI y las aeronaves.

4.4.2.10 La notificación de las situaciones de emergencia se efectuará mediante el sistema de amplificación y alarma, el cual será accionado a través de timbres u otro mecanismo confiable disponible en el mercado.

4.4.2.11 Es recomendable utilizar una alarma audible que pueda sentirse a gran distancia y por todo el personal, considerando la multiplicidad de funciones que desempeña el personal SSEI en el aeródromo.         
        El sonido de la alarma de emergencia deberá ser diferente de cualquier otro sistema de timbre o notificación y lo suficientemente fuerte, para que pueda ser oída por sobre los niveles normales de ruido del ambiente laboral.

4.4.2.12 Deberá contar con mandos o controles de alarma funcionales, los cuales deberán ser compactos, ordenados, ubicados convenientemente y fácilmente identificables a objeto puedan ser accionados por todo el personal, sin ningún tipo de problema.

4.4.2.13 El sistema de amplificación de alerta para el personal SSEI será accionado desde la CCA, lugar que, además, de acuerdo a la instalación dispondrá de un control de apertura de portones y encendido de luces.

4.5      CARACTERÍSTICAS DE LAS DEPENDENCIAS

        Las dependencias de los cuarteles satélite y de uso temporal deberán contar con una losa que permita una proyección de crecimiento en altura (segundo piso).

4.5.1    Oficinas administrativas

4.5.1.1  El Cuartel principal SSEI deberá contar con la cantidad de dependencias adecuadas, asignando una de ellas para el jefe del Servicio SSEI, la cual será lo suficientemente amplia para disponer de un baño y acomodar una mesa de reuniones.

4.5.1.2  Otra dependencia se destinará como oficina para los Supervisores y Jefes de Turno SSEI, la cual deberá estar ubicada lo más cercana posible al hall de estacionamiento de vehículos en los Cuarteles.

4.5.1.3  Deberá contar con un recinto para archivo, cerrado con llave, de mínimo 8 metros cuadrados, con su correspondiente estantería.

4.5.2    Sala de Capacitación

4.5.2.1  Deberá contar con área específica para fines de capacitación, con espacio para contener una pizarra, pantalla de proyección, diario mural, punto de red, gráficos mapas y otras ayudas necesarias para el proceso de instrucción.

4.5.2.2  La sala deberá disponer de espacio para garantizar el almacenamiento de material didáctico, ayudas audiovisuales, equipos y suministros.
        Para efecto de superficie útil promedio se contemplará 1.50 metros cuadrados por persona, con sillas tipo universitario, para el 60% de la dotación.
        Deberá contar con sistema de climatización.

4.5.3    Sala de Acondicionamiento Físico
        Deberá contar de una sala de ejercicios lo suficientemente grande, para acomodar el 50% del personal SSEI de la Unidad y el equipo necesario, lo que obedece a la necesidad de mantener permanentemente una condición física apropiada para el desarrollo de las funciones inherentes como, asimismo, cumplir con las disposiciones establecidas para la mantención de la eficiencia operativa.

4.5.4    Sala de briefing y reuniones
        Deberá contar con una sala multipropósito para realizar reuniones y briefing o dibriefing, con punto de red.
        El tamaño estará directamente relacionado con la cantidad de personas que conforman los turnos entrantes, saliente y eventuales visitas, por lo tanto, deberá contar con una superficie de a lo menos 2,0 metros cuadrados por ocupante, que incluya espacio para la circulación / desplazamiento y mobiliario.

4.5.5    Sala de Descanso

4.5.5.1  Deberá contar con alojamientos para el personal SSEI en los aeropuertos y aeródromos donde se brinda servicio durante las 24 horas y, por lo tanto, operan en turnos de noche.

4.5.5.2  La configuración de la sala de descanso para damas y varones estará conformada para el 30% de la dotación de turno y deberá considerar una superficie de a lo menos 5 metros cuadrados por persona.

4.5.5.3  Las Salas de descanso deberán estar preferentemente situados en la planta baja, junto a los casilleros y zona de servicios higiénicos, duchas y deberán tener acceso directo al hall de vehículos del Cuartel.

4.5.5.4  Los muros, piso y materiales de construcción utilizados, deberán contar con las características técnicas apropiadas para la atenuación del ruido.

4.5.5.5  Cada Sala de descanso deberá estar acondicionada para cumplir con dicho propósito, contar con un reloj, una extensión de intercomunicación y parlantes para escuchar la notificación de la emergencia, además de la correspondiente luz de emergencia.

4.5.5.6  Cada Sala de descanso deberá contar con una salida de emergencia contra incendios conforme lo especificado por el código de construcción. Si procede, estas ventanas de salida de emergencia que se pueden abrir sólo del interior, podrán ser utilizadas como salidas de las Salas de descanso construidos en el primer piso.

4.5.6    Sala de Vestidores

4.5.6.1  Se debe considerar vestidores para hombres y mujeres, considerando un promedio de 80% de hombres y 20% de mujeres de la dotación SSEI de la unidad.

4.5.6.2  Esta sala deberá estar contigua a la zona de duchas y sala de descanso. Deberá considerar roperillos (lockers) con al menos 0.75 metros cuadrados libre de obstáculos por funcionario.

4.5.6.3  Considerando que la zona despejada dependiendo del número de funcionarios de la dotación, se recomienda que el armario tenga una dimensión de 46 cm de ancho, 60 cm de profundidad y 198 cm de alto. El espacio total para cada casillero, considerando el espacio libre del frente, será de 1,40 metros cuadrados.

4.5.7    Servicios Higiénicos y duchas

4.5.7.1  Las instalaciones del servicio higiénico deberán contar con calefacción y ventilación natural. Considerar personal femenino 20% y masculino 80% de la dotación SSEI.

4.5.7.2  Deberán considerar los ganchos para el vestuario y toallas, los cuales deberán estar situados cerca de las duchas y vanitorios con espejos, pero a una distancia que los mantengan secos.

4.5.7.3  La construcción del cielo del baño será con materiales resistentes al agua y la superficie del piso con material antideslizante.

4.5.7.4  Las zonas de vestidores, baños y duchas deberán contar con amplificadores del sistema de alarma del cuartel.

4.5.8    Cocina americana y comedor

4.5.8.1  La cocina será lo suficientemente amplia como para dar cabida a una zona de preparación de alimentos, una zona con muebles para almacenar utensilios de cocina, refrigerador, cocina, lavaplatos y electrodomésticos.

4.5.8.2  La experiencia establece que el área del comedor será igual al número de lugares necesarios para que se acomode un turno completo del personal SSEI, más el turno anterior y visitas.
        Deberá considerar a lo menos 2 metros cuadrados por persona.

    CAPÍTULO 5

    DEPENDENCIAS DE APOYO

5.1      DEPENDENCIAS Y ÁREAS DE APOYO

        Las bodegas, deberán contar con una losa que permita una proyección de crecimiento en altura (segundo piso).

5.1.1    Bodega para almacenamiento de agentes extintores

5.1.1.1  Deberá contar con una superficie para el almacenamiento de los agentes extintores tales como espumógeno y productos químicos secos, que deberán ser apilados en pallets de 1,25 x 1,25 mts., en una superficie mínima de 21 metros cuadrados, dependiendo del número de vehículos contra incendio de dotación del aeródromo.

5.1.1.2  La bodega deberá contar con puertas bastante amplias para el movimiento de carga y descarga estos productos.

5.1.2    Taller de mantenimiento

5.1.2.1  Deberá contar con taller de mantenimiento, área donde se realizará el mantenimiento de rutina a los vehículos y equipos de dotación SSEI, el que estará ubicado en un espacio separado y adyacente al hall de vehículos o en su defecto, en un espacio designado previamente dentro del hall de estacionamiento del Cuartel SSEI, considerando un banco de trabajo y un pañol de herramientas.

5.1.2.3  La superficie mínima considerada para el área de trabajo será de 28 metros cuadrados y el pañol de almacenaje de las herramientas del taller será de 9 metros cuadrados.

5.1.2.4  Deberá contar con altavoz de alarma y un intercomunicador de fácil acceso, para tomar conocimiento de las emergencias en el aeropuerto o aeródromo.

5.1.3    Bodega para almacenamiento de equipos de salvamento, rescate y traslado de aeronaves inutilizadas.

5.1.3.1  Deberá contar con espacio suficiente para el almacenamiento del material menor contra incendio como, asimismo, para los equipos de extinción, rescate, salvamento, traslado de aeronave inutilizada, asignado a la unidad.

5.1.3.2  Se requiere un área de trabajo destinada al recambio de los botellines de los extintores, recarga de los cilindros de aire respirable y extintores portátiles de incendio.

5.1.3.3  La bodega destinada a estas labores deberá considerar una superficie de 32.0 metros cuadrados como mínimo.

5.1.4    Bodega para equipos Haz-Mat. RPA

5.1.4.1  La bodega destinada a resguardar el equipamiento Haz-MAT y de peligro aviario, deberá ser de al menos 32 metros cuadrados que permita tener el equipamiento separado y con estanterías para almacenamiento.

5.1.5    Bodega de combustibles y lubricantes

5.1.5.1  La bodega de combustibles y lubricantes preferentemente debe de estar contigua al taller de mantenimiento y deberá cumplir las normas nacionales.

5.1.5.2  El espacio destinado a esta bodega deberá ser como mínimo 20 metros cuadrados.

5.1.6    Pozo de mantenimiento

5.1.6.1  El pozo para el mantenimiento de los vehículos SSEI deberá de estar ubicado en el último estacionamiento del hall de vehículos.

5.1.6.2  La escalera para ingresar al pozo deberá ser paralela a la pared del pozo y con pasamanos.

5.1.6.3  El largo del pozo y ancho deberá permitir la inspección un vehículo principal de extinción de incendios.

5.1.6.4  El pozo mecánico deberá resistir el peso, de un vehículo principal de extinción deincendios.

5.1.6.5  El pozo debiese tener luz y enchufe, además de una cubierta protectora en caso de no uso por caída a desnivel.

5.1.7    Plataforma para lavado de vehículos y equipos
        Esta plataforma estará emplazada al costado exterior del cuartel y continua a la sala de mantenimiento. Deberá contar con una fuente de agua fría y caliente, armario para almacenar los elementos y suministros de limpieza.

5.1.8    Área de Estacionamiento (Pública y para el Personal SSEI)

5.1.8.1  El número de estacionamientos mínimos recomendado, es un espacio por persona por cada turno. Conforme a la reglamentación aeronáutica vigente, deberá considerarse con acceso controlado.

5.1.8.2  La zona de estacionamiento deberá dar cabida a los vehículos correspondientes al personal SSEI de dos turnos, evitando así los retrasos por cambio de turnos o cuando el personal está convocado a causa de una emergencia en el aeropuerto.

5.1.8.3  La ubicación del estacionamiento será tal que no obstaculice las operaciones de los vehículos de dotación SSEI.

5.1.9    Sala de armas

5.1.9.1  Esta dependencia deberá cumplir la normativa vigente para el resguardo de municiones y armamento de caza utilizados en el control de la fauna en el aeropuerto o aeródromo.

5.1.9.2  La sala de armas será una dependencia de a lo menos 3 metros cuadrados.

5.2      DEPENDENCIA PARA EQUIPOS DEL PLAN NIEVE

5.2.1    Ubicación

5.2.1.1  En los aeropuertos y aeródromos donde el Servicio SSEI tiene la responsabilidad de realizar las funciones de control y despeje de nieve, se deberá considerar un recinto anexo al cuartel SSEI, cuyas instalaciones permitan albergar y proteger a los vehículos, equipos e insumos considerados para materializar la tarea.

5.2.1.2  Las instalaciones deberán estar ubicadas con una orientación que permita un acceso directo al área de movimiento, una pronta respuesta a los requerimientos del Plan Nieve sin interferir con el desplazamiento de los vehículos de emergencia y el rodaje de las aeronaves.

5.2.1.3  Deberá disponer de las calles de servicio apropiadas para el desplazamiento de los vehículos del Plan Nieve a los diferentes sectores operacionales y perimetrales que requieran la aplicación de productos descongelantes y el despeje de la nieve.

5.2.1.4  La Dependencia, deberá considerar la factibilidad de ampliación de las instalaciones, producto del incremento de vehículos y equipos asignados para el cumplimiento de la función.

5.2.1.5  Deberá considerar un sistema de cortafuego adecuado con respecto al Cuartel SSEI, con el objeto de evitar en caso de un siniestro, la destrucción de las instalaciones.

5.2.2    Configuración

5.2.2.1  El hall de la Dependencia, deberá considerar los siguientes estacionamientos:

        a) 02 estacionamientos para vehículos con palas quitanieves y depósitos de urea.
        b) 01 estacionamiento para vehículo barredor - soplador.
        c) 01 estacionamiento para vehículo y equipo esparcidor de anticongelante líquido.
        d) 01 estacionamiento para vehículo de apoyo de limpieza de puentes y accesos menores.
        e) 01 estacionamiento para grúa horquilla o similar.

5.2.2.2  Los productos descongelantes líquidos y sólidos deberán almacenarse en bodegas separadas y apropiadas, a objeto evitar su deterioro y cambios en las características y cualidades de su composición y efectividad.

5.2.2.3  Para el almacenamiento de los productos descongelantes líquidos, se deberá disponer de una superficie mínima de 40 metros cuadrados. Para los productos químicos secos (urea) se requerirá una superficie mínima de 30 metros cuadrados.

5.2.2.4  Deberá considerar una bodega para el almacenamiento de repuestos y materiales varios tales como neumáticos, aceites, partes y componentes de los equipos utilizados en el despeje de nieve, conforme al conjunto de normas ISO 14.000.

5.2.2.5  Deberá considerar la superficie necesaria para efectuar las labores de mantenimiento y reparación de los vehículos y equipos asignados a la unidad. Deberá contemplar la implementación del pañol de herramientas y plataformas de trabajo correspondiente.

5.2.2.6  Deberá estar implementado con sistemas de extracción de gases, ya sea del tipo forzado o manual, que cumpla con el objetivo de mantener ambientes ventilados para la seguridad del personal.

5.2.2.7  Deberá poseer un sistema de calefacción adecuado para evitar el congelamiento de los sistemas de los vehículos y equipos, el cual debe contar con control de calefacción independiente para mantener temperatura ambiente no inferior a +5 ºC.

5.2.2.8  El alumbrado artificial deberá ser del tipo LED para asegurar una iluminación no inferior a 300 lux. Al exterior la iluminación media deberá ser de 20 lux.

5.2.2.9  Deberá considerar un tablero eléctrico independiente al del Cuartel SSEI.

5.2.2.10 Deberá contar con una extensión desde el Cuartel SSEI del sistema de amplificación, para advertir la notificación de emergencia, citófonos y sistemas de escucha ambientales de las frecuencias de trabajo y emergencia.

5.2.3    Dimensiones y características de los estacionamientos

5.2.3.1  Las dimensiones de los estacionamientos estarán asociadas a las características físicas de los vehículos y equipos asignados al Plan Nieve.

5.2.3.2  El tamaño del estacionamiento se determinará tomando como modelo, el vehículo y equipo de mayor dimensión en uso o en su defecto, el nuevo vehículo previsto que se asignará a la unidad. El tamaño apropiado de los sitios de estacionamiento proporcionará flexibilidad operacional, márgenes de seguridad y espacio para las labores de mantenimiento menor de vehículos y equipos.

5.2.3.3  Los espacios mínimos de seguridad estándar recomendados para los vehículos del Plan Nieve estacionados y sin equipos anexos, consideran:
        a) 1,80 mts de las paredes u otros objetos estacionarios.
        b) 2,40 mts. de otro equipo estacionado paralelamente.
        c) 1,50 mts. de los portones.

5.2.3.4  El material de la superficie del estacionamiento deberá ser lavable, demarcado con pintura amarilla de alto tráfico y deberá considerar una pendiente del piso, orientada hacia los portones, donde se instalará un drenaje para permitir que escurran los líquidos, el cual estará cubierto por una rejilla gruesa y resistente, que soporte holgadamente el peso de los vehículos y equipos del Plan Nieve.

5.2.3.5  La instalación de los portones deberá considerar un sistema de accionamiento rápido, ya sean automáticos, manuales o una combinación de ambas.

5.2.4    Plataforma exterior

5.2.4.1  El diseño de la plataforma exterior estará orientado de tal forma que permita un acceso directo desde el estacionamiento al área de movimiento y calles de servicio, evitando giros que puedan poner en peligro la estabilidad del vehículo y su equipo.

IV.      VIGENCIA
        La presente norma entrará en vigencia a contar de la fecha de su publicación de la Resolución aprobatoria.

    APÉNDICE "A"
    CUARTEL SSEI. PRINCIPAL

    .
    .
    .
   
    APÉNDICE "B"
    CUARTEL SSEI. SATÉLITE O USO TEMPORAL
   
    .
   
    APÉNDICE "C"
    ESTACIÓN REMOTA
    .
   
    ANEXO A
    VEHÍCULOS CONTRA INCENDIO POR CATEGORÍA DE AEROPUERTO Y SUS DIMENSIONES

    .
   
    .